Gesponsert

Syd – die Top-Adresse für neue Praxisräumlichkeiten

Ein idealer Standort für Ärzte oder Therapeuten – das elfgeschossige Wohn- und Geschäftshaus Syd befindet sich zentral gelegen am Irène Zurkinden-Platz beim Basler Dreispitz Areal. Im 1. – 4. OG des Neubaus befinden sich die modernen Businessflächen, welches hervorragend mit dem ÖV zu erreichen ist.

, 29. Juli 2022 um 07:52
image
Moderne Architektur, lichtdurchflutete und hohe Räume – mit diesen Charakteristika wurden bei den Businessflächen im Syd beste Voraussetzungen geschaffen, um als Arzt oder Therapeut ein angenehmes, modernes Praxisambiente ganz nach den eigenen Vorstellungen zu realisieren. Die Mietflächen – konzipiert für Praxen und Büros – befinden sich in den Obergeschossen 1 bis 4 und sind mit dem Lift zugänglich. Alle Räume sind rollstuhlgängig. Die Übergabe an die Mieter erfolgt im Edelrohbau (inkl.: Luft- und Wärmeverteilung über Hybriddeckenelemente). Mit einem Höchstmass an Flexibilität hinsichtlich der Flächengrössen wurde das Angebot so gestaltet, dass es für eine vielschichtige Mieterschaft aus dem medizinischen Bereich ansprechend ist: Ärzte, Therapeuten, Gemeinschaftspraxen oder Ärztezentren können das Raumangebot ganz individuell an den eigenen Platzbedarf anpassen. Zuteilungen sind ab 150 m2 bis insgesamt 960 m2 pro Etage möglich. Auch etagenübergreifende Zusammenlegungen sind nach Absprache denkbar.
Zusätzliche Attraktivität verleiht dem Standort die Tatsache, dass für das Gebäude die SGNI/DGNB-Auszeichnung Gold erteilt wurde, ein anerkanntes Gütesiegel für nachhaltiges Bauen. Das Gebäude ist an das Basler Fernwärmenetz angeschlossen.
image
image
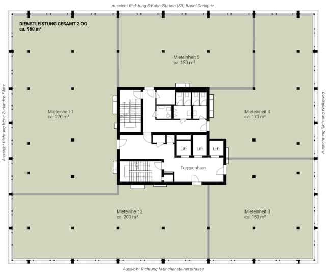
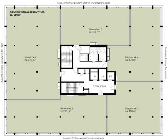
Der Grundrissplan zeigt die geplante Flächeneinteilung im 2. OG. Das gesamte Businessflächen-Angebot ist auf der Website syd.ch ersichtlich.
Hervorragende Lage und viel Potenzial.
Die Lage am gut erschlossenen Irène Zurkinden-Platz ermöglicht die gute und schnelle Erreichbarkeit für Patienten aus einem grossen Einzugsgebiet:
Insgesamt sechs Bus- und Tramlinien kreuzen an diesem wichtigen Knotenpunkt des öffentlichen Verkehrs. Auch mit der Bahn oder dem Auto ist die Anfahrt bequem möglich. Für rund 120'000 Menschen aus Basel und dem unteren Baselbiet ist der neue Praxisstandort im Syd damit in kürzester Zeit erreichbar. Grosses Potenzial für die Gewinnung neuer Patienten bietet auch die Entwicklung der Umgebung um den Dreispitz: In den kommenden Jahren entstehen mit Dreispitz Nord, Wolf Basel und dem Areal Walkeweg gleich drei neue, attraktive Quartiere in nächster Nähe. Die Ambitionen der Trägerschaft, mit einem interdisziplinären medizinischen und therapeutischen Angebot eine Art Gesundheitsplattform im sehr zentral gelegenen Syd zu installieren, versprechen erfolgreich zu sein. Ein erster Schritt scheint mit dem bereits fixierten Einzug einer Coop Apotheke im Erdgeschoss getan. Interessierte Mieter können ihre Anmeldung für eine Businessfläche ab sofort online übermitteln. Geplanter Bezugstermin für die Mietflächen des Syd ist Frühling 2023. 
Beratung & Vermietung
Desirée Hodel                                                                                                                      
Warteck Invest AG                                                                                     
Grenzacherstrasse 79                                                                                                     
4058 Basel
T +41 61 690 92 20
F +41 61 690 92 30
image
  • basel-stadt
Artikel teilen

Loading

Kommentar

Mehr zum Thema

image

St. Gallen schiebt «Heilungen» für Homosexuelle den Riegel

Sogenannte Konversionstherapien durch Coaches, Geistliche und Sexualberaterinnen sind in der Schweiz immer noch erlaubt. Der Kanton St. Gallen will diese nun verbieten.

image

Basler Bildungsinstitutionen wollen enger zusammenarbeiten

Der «Campus Bildung Gesundheit» soll drei Bildungseinrichtungen beider Basel unter ein Dach bringen. Die Baselbieter Regierung hat 1,1 Millionen Franken für das Vorhaben genehmigt.

image

Gesundheitsdepartement legt Beschwerde gegen Zeitung ein

Eine Zusammenarbeit des Basler Unispitals mit dem Bethesda-Spital sorgte für rote Köpfe. Der Begriff «Phantomspital» ist gemäss Presserat aber gerechtfertigt.

image

Basel-Stadt: Kantonsarzt gründet eigene Firma

Thomas Steffen lässt sich im Januar 2022 frühpensionieren. Doch in den Ruhestand geht er noch lange nicht: Er will sich neuen Projekten widmen.

image

Positives Zwischenfazit zu Covid-Schnelltest vor Arbeitsbeginn

Sieben asymptomatische Fälle wurden erkannt. Auch in der «Medinside»-Umfrage kommt die Schnelltest-Idee gut an.

image

Basler Spitäler haben zu wenig verdient

Der Basler Regierungsrat sorgt sich um die Zukunft seiner Spitäler. Das grösste Sorgenkind ist das Universitätsspital. Es muss sparsamer werden.

Vom gleichen Autor

image

Wie können Pharmafirmen mehr für PatientInnen tun?

In der Schweiz identifizierten im Rahmen einer Befragung PatientInnen, Betreuende, ÄrztInnen und PatientInnenorganisationen1, was die Pharmaindustrie über die Bereitstellung von Medikamenten hinaus tun kann, um PatientInnen sowie die Gesellschaft besser zu unterstützen.

image

Unsere Gesellschaft ist übermüdet

Unser Berufs- und Sozialleben folgt einem anderen Zeitplan als dem unserer inneren Uhr. Schlafmangel ist die Folge, noch schwerwiegender sind aber die daraus resultierenden Folgeerkrankungen.

image

Alles in einem System

Das Stadtspital Zürich hat es sich zur Aufgabe gemacht, seine IT-Systeme zu homogenisieren. In der Radiologie spielt Dedalus HealthCare mit DeepUnity die zentrale Rolle.